Saint-Pierre-du-Perray : bâtir une nouvelle église, un formidable élan
La commune de Saint-Pierre-du Perray est une des rares communes de l’Essonne à ne pas avoir d’église. Dans nos villes en pleine expansion, la quête de sens et le retour vers la parole de Dieu se font ressentir avec insistance. En bâtissant cette église au cœur du nouveau centre-ville en construction, Mgr Michel Dubost, evêque d’Evry, souhaite offrir un lieu de célébration et de vie.

- Les clochers de St Pierre.
- Cliché pris le 11 décembre 2013 par Philippe Lestang.

19 août 2013... l’église Saint-Pierre sort de terre ! .... Elle devrait ouvrir ses portes en 2015.

Une ville en pleine croissance
La ville de Saint-Pierre-du-Perray, qui compte 9300 habitants fait partie de la nouvelle ville de Sénart. C’est une commune en pleine croissance démographique qui rassemble des familles originaires de nombreuses cultures dont beaucoup de catholiques. De plus, la ville voisine de Tigery, elle aussi en plein développement, n’a pas d’église.
Une église en plein cœur du centre ville
La future église Saint-Pierre sera édifiée à côté de l’hôtel de ville de Saint-Pierre-du-Perray. Elle sera donc dans un lieu de grand passage où sont regroupés les commerces, la médiathèque, le complexe sportif, les locaux professionnels et de nombreux logements.
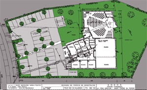
Sur un terrain de 3 160 m2, seront construits 733 m2 de bâtiments abritant :
• L’église pouvant accueillir 200 personnes
• Un logement de fonction pour le curé de la paroisse
• 4 salles modulaires dont une pouvant recevoir 300 personnes
Il y aura également un parking de 43 places.


Les grandes lignes du projet architectural, par l’architecte Marc Depeyre :
L’extérieur de l’église
"L’église aura un plan carré, qui apportera une sensation de concentration, d’équilibre et d’unité. Trois flèches, qui symbolisent la Trinité, viendront dynamiser l’ensemble : la moins élevée marquera l’entrée, celle qui culmine abritera le clocher et la plus élancée accueillera le chœur. Dans un environnement à dominante végétale, les façades lisses de couleur blanc cassé viendront souligner la spécificité de l’édifice. Douze baies verticales vont rythmer la façade de l’entrée ainsi que la façade latérale côté bassin, en référence aux 12 apôtres. "
"Au sud du parvis, le centre pastoral viendra compléter l’église avec des salles de réunion et des bureaux. Tot en conservant l’homogénéité d’ensemble, sa volumétrie différenciée va introduire une hierarchie entre les espaces sacrés et les espaces d’accueil et de réunions. Un cheminement guidera tout naturellement le fidèle depuis le centre pastoral vers l’église. A travers ce cheminement j’ai aussi voulu marquer le fait que l’église fait partie intégrante de la vie de la cité".
L’intérieur de l’église
"J’ai voulu souligner le rassemblement de la communauté et son élan vers le chœur. Le plan carré de la nef souligne cette communion des fidèles et leur proximité avec le célébrant. La nef pourra accueillir 200 personnes. Une tribune en étage augmente cette capacité."
"Dès l’entrée, le fidèle est orienté vers le chœur. Une lumière rasante, qui viendra d’une baie latérale de hauteur généreuse, viendra renforcer cet attrait vers le chœur tout en apportant une dimension de quiétude, d’inspiration et de mystère.
Les couleurs et les matériaux, des lames de bois pour le plafond et des tons clairs pour les parois verticales, donneront à ce lieu chaleur et sérénité".
Participation des Chantiers du Cardinal : 500 000 €
_______________________________________________________
Le 16 septembre 2012, alors que les journées du patrimoine battent leur plein, Mgr Dubost et Mgr Bobière, évêque et vicaire général de notre diocèse, célébrent la messe dominicale de St Germain/StPierre/Tigery.
![]() |
![]() |
L’équipe animatrice de la paroisse et le trésorier ont d’abord présenté un diaporama aux paroissiens et à notre évêque, donnant quelques repères démographiques et géographiques.
Les maires de St Pierre du Perray et de St Germain lès Corbeil, MM. de Rus et Marcelin, se montrent, eux aussi, très intéressés.C’est l’ensemble de la communauté qui s’est mobilisée non seulement pour cette présentation, mais surtout, autour de ce projet qui signifie la vie le notre Église locale.

Mgr Dubost était entouré (à sa gauche) de Mgr Alain Bobière, habitant de St Pierre du Perray et Vicaire général ; ( à sa droite) du Père Evariste Camara, prêtre de la paroisse ; de Jacques Dovèze, diacre et habitant de Tigery ; du Père Christian Marandet, responsable du secteur pastoral.
Extraits de l’homélie de Mgr Dubost
Nous parlons de construction d’une église dans un monde difficile. Difficultés diverses, dont celles pour essayer d’ accueillir dignement les populations migrantes. Les textes d’aujourd’hui peuvent nous aider à nous placer de manière juste quand nous voulons construire cette église.
Dans l’Évangile, un homme, comme nous, aimerait savoir ce que les autres pensent de lui. Personne ne peut être indifférent à ce que les autres pensent de lui. Les apôtres sont un peu comme nous, capables de dire ce que les autres pensent. Pas si facile, mais Pierre le dit « tu es le Messie ».
Cette question là se pose pour notre communauté : « Vous construisez une église, qui êtes-vous ? ». Nous voulons affirmer clairement, que dans ce monde difficile il faut construire. Nous voulons être présents, communiquer le message de Pierre. Nous croyons que Jésus est le Messie, celui qui peut apporter le bonheur dans ce monde.
Le problème est déjà dans le texte. C’est facile de dire cela. Pierre le dit. Ses paroles sont justes mais sa pensée est fausse. Il a la même pensée que tous les fondamentalistes du monde. Il affirme que Jésus est le Messie, mais ne veut pas qu’il soit soumis aux contingences du monde normal, que Jésus aille à sa mort. Il veut que Jésus s’impose, soit victorieux. Jésus lui, ne veut pas ça. Nous savons comment le fondamentaliste est une plaie. Nous ne pouvons pas, nous chrétiens, nous situer dans le monde comme des fondamentalistes. Nous savons que le Christ est la vérité, mais nous entendons en même temps un appel à respecter l’autre quitte à en souffrir nous-mêmes.
Quand Pierre donne sa réponse, Jésus lui répond : « Passe derrière moi ». Si nous construisons une église, c’est que nous acceptons de dire publiquement que notre idéal est de suivre le Christ, éventuellement jusqu’à la mort. Il a voulu servir l’humanité. Il a voulu dire par sa vie, que l’amour, même s’il conduit à la mort est plus fort que la mort. Nous sommes au service les uns des autres. Les chrétiens ne peuvent construire une église que s’ils sont décidés à créer du lien social, à tisser une ville qui ne soit pas seulement une juxtaposition de maisons. Une église doit être un signe de fraternité. Le serviteur dans Isaïe, c’est quelqu’un qui prend en charge le péché des autres. Nous ne pouvons pas prétendre suivre le Christ si nous ne sommes pas capables d’aider les autres à faire société et si nous ne sommes pas capables de palier les conséquences des péchés des hommes, de lutter pour la justice, pour la fraternité.
Dans le Concile, il est dit que l’Église doit être un signe de l’union avec Dieu et de l’unité du genre humain. Le bâtiment église doit dire notre soif d’union avec Dieu, et la manifester en travaillant à l’unité du genre humain. Sans cela cette église serait un mensonge. Il est important que nous arrivions à garder une communauté dont cette église sera le signe. Une communauté ouverte, missionnaire. Non pas pour faire du prosélytisme mais pour essayer de faire que cette ville soit habitable, humaine.
![]() |
Les enfants, ravis de l’invitation de Mgr Dubost se sont rendus autour de l’autel pour réciter le Notre Père, puis porter la paix à l’assemblée.
Puis, l’Équipe Animatrice de la paroisse a reçu remerciements et encouragements pour porter ce projet à bien...
Mgr Bobière,Vicaire Général et habitant de St Pierre du Perray, présent dans ce projet pour faire le lien avec le diocèse donne quelques détails supplémentaires :
Nous avons acheté le terrain près de la nouvelle mairie, il reste à trouver trouver les financements pour la construction. L’architecte retenu est M. Marc Depeyre de Méréville, qui a, entre autres, réalisé le Centre Pastoral de Brétigny.
Il y aura un clocher signifiant sur le bâtiment. Nous avons reçu un don de la famille de Henri Guerin qui était un grand maître verrier, de vitraux pour l’intérieur. (Son frère a été longtemps de Palaiseau).
Ce sera l’église St Pierre et la paroisse sera celle de St Pierre/St Germain/Tigery.

Quelques images du projet... un verre de l’amitié sur le parvis de l’église de St Germain, sous un ciel clément et dans une ambiance joyeuse.

- Terrain près de la nouvelle mairie

- Projet non définitif

- Plan - parkings, salles de réunion et espace de célébration modulable
… à St Pierre-du-Perray, au cœur de la ville nouvelle de Sénart.
Voici 40 ans, l’idée naissait de créer une ville nouvelle dans le sud est de la région parisienne. Conçue dans les années 60 sous l’impulsion de Paul Delouvrier, préfet de la Région parisienne, Sénart est inscrite dès 1965 dans les documents de planification régionaux et prend corps au fil des années.
Recensant 98 000 habitants en 2005, elle en compte 100 247 en 2009, et l’estimation de croissance porte ce nombre à 150 000 en 2015. _ D’énormes chantiers voient le jour dans tous les domaines : infrastructures, voies de communication (TZen), centre commercial, écoles, universités, entreprises, logements …
Les villes de Tigery et Saint Pierre-du-Perray sont les deux communes essonniennes de cette nouvelle agglomération et voient leur cadre de vie évoluer, les champs font place à de nouvelles constructions…
- Vues : 1564


